A Derék utcán, a 10 emeletes panelházak térfalát megszakító földszintes garázssor által teremtett vertikális teresedésében húzódik kissé idegen testkén a hajdani Fregatt söröző és játékterem. Földszintes, erősen tördelt magastetővel fedett tömeg, díszítései, ablakkeretezései teszik itt kívülállóvá.
Az épület úszótelken helyezkedik el, melyet 100%-ban betölt. Az évek óta használaton kívüli épület elhagyatottsága miatt még inkább kívülállónak tűnik. Az építtető látta benne üzleti potenciált, megvásárlás után annak áttervezését és bővítését határozta el.
Elképzelése szerint, a földszint újraértelmezése után kereskedelmi funkciót tartalmazna (festéküzlet és bérbe adott kereskedelmi funkciók), és egy emelet ráépítésével sport és wellness tevékenységek számára adhatna helyet. Az épület és a műszaki vizsgálatok során kiderült, hogy a szerkezet csak jelentős anyagi ráfordítás után lenne képes többletterhet viselni, és az ide álmodott funkció kompromisszumok sorát tartalmazná. Megoldás tehát a meglévő ház bontása után teljesen új épület építése.
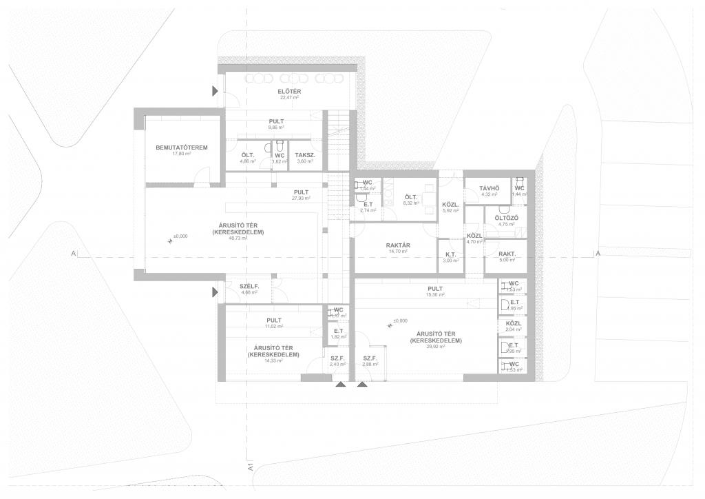
A telek formája és kiterjedése valamilyen szinten determinálja a tervezési folyamatot. Kialakult csapások, átvágások, melyek nem a feltétlenül a kijelölt burkolt járdán keresztül folynak, kijelölnek egy közlekedési hálórendszert, mely a megközelítések, bejáratok helyét adhatják. Az épület funkcionális szempontból összetett. A földszinten kialakításra kerülnek a kereskedelmi egységek, melyek külön-külön megközelítést kapnak. A sport és wellness emeleti funkciósora valamint a II. emeleti irodák az épület nyugati oldalán, ellenőrzött bejáraton keresztül közelíthetők meg. A közlekedési szempontból összefonódó funkciósor az I. emeleten ad betekintést, de mégis külön elszeparáltan működik. Az I. emelet sporttereit (spinning, konditerem) wellness egészíti ki, valamint szolgáltatásként fodrászat és kozmetika társul. Ezen a szinten találhatók az öltözők, vizesblokkok. A II. emelet helyiségeit irodák alkotják, melyek kiegészülnek az egész épület számára használható tetőterasszal. A különböző funkciók rendszerét, a tömeg formálását egyrészt a telek kiterjedése, másrészt az összefüggő funkciók rendszere határozza meg. Ilyen módon az épület 3 nagy tömbre tagolódik, melyeket egy határozott vonalú, az egész házon végighúzódó közlekedővonal hasít fel és kapcsol össze. A panelházakhoz közelebb eső, északi épülettömeg emelkedik egy szinttel a többi fölé, alkalmazkodva azokhoz, illetve némiképp intimebb lehetőséget adva funkcióknak. Az épület anyagképzésében vakolt fehér tömegek, helyenként selyemfényű színes panelokkal megszakítva. A szolgáltató rész I. emeleti tömegét reklámhordozóként felhasználva, a színes panelek előtt megvilágított polikarbonát burkolat húzódik. Jellemző az épületre a nagyobb megnyitások, üvegfelületek, üvegkorlátok használata, külső tömegén és belső térszervezésén egyaránt.
White Box
Tervezés éve
2016
Építés éve
2017
Tervező
Barabás Lajos
Nagy Dénes
Tarcsi László
Kelemen Stella
Czirják Róbert
Leírás






