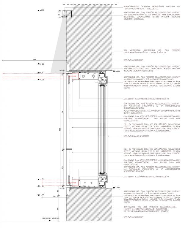
A STAY BÁR a Péterfia és Thaly Kálmán utcák kereszteződésében, pince+földszint+ 2 emelet szintekből álló saroképület pinceszintjén működik. A vendéglátás helyszínét kívántuk kiterjeszteni fogyasztóterasz formájában. A fogyasztóterasz kialakításának erős korlátja a Thaly Kálmán utca szűk gyalogos járdája, mely alig-alig visel el további szűkítést. A jelentős gyalogos és kerékpáros forgalom miatt a Péterfia utca szélesebb járdakeresztmetszete is érzékenyen reagál az itt elhelyezett fogyasztóteraszok méretére. Az épület homlokzata enyhén ki-be lépcsőzve követi a járdát, míg a sarkon ívesen fordul át. Az említett helyszűke miatt a fogyasztóterasz kialakítását a pinceablakok speciális spalettáival oldottuk meg. A spaletták középen felnyíló, aszimmetrikus kialakítású szerkezetek, melyek felnyitás után rögzítve adják a fogyasztópultot és alsó részük a lábtartót. Így zárt állapotban vagyonvédelmi célt szolgálnak, nyitott állapotban pedig fogyasztóhellyé alakulnak. Ezzel elérhető, hogy minimális helyszükséglet mellett létrejöhessen a min.: 1,50 m gyalogos közlekedési zóna. A kb. 50 cm kilógású pultok homlokzat mellett elhelyezett magasított székekkel működnek. A székek a bár belsőépítészetében használt egyedi tervezésű bútorok. A pultok megvilágítását egyedileg tervezett világítótestek végzik, melyek a lábazat peremére erősítendők fel. További megvilágítást ad a köztéri lámpák, illetve az ablakkeretezés rejtett led világítása. A bár bejáratának ajtaján a STAY felirat szintén rejtett világítást kap, mely a plasztikus betűk síkból való kimozgatásával értünk el.
Stay Club terasz
Tervezés éve
2016
Építés éve
2016
Tervező
Barabás Lajos
Leírás






